• 石库
  • 企业
  • 市场
  • 物流
  • 供求
  • 特价
  • 百科
直达
识图
正在上传图片,请稍后...
全国统一服务热线400-8855-126
石库
直达
识图
正在上传图片,请稍后...
400-8855-126
首页石材新闻石材装饰教你如何利用隔断,打造出通透的室内空间
新闻类别
MORE+相关推荐
MORE+企业推荐

教你如何利用隔断,打造出通透的室内空间

石材装饰 | 2019-09-15 09:05:57 | 来源:网络 | 浏览:756

教你如何利用隔断,打造出“琚宾之家”的通透室内空间

在现代家居装修中,不仅要满足追求个性化的设计,又要满足实用性的刚需,同时还希望有美观大方的房间效果。


但并不是所有的户型都那么的完美,有时候空间中的墙,不仅影响空间的延续性,破坏房子的空间感,而且还会隔开自然光,这个时候就需要用隔断来进行处理。


本文介绍三种特殊隔断:玻璃隔断、悬挂隔断、绢布隔断。我们通过讲解使用场景、工艺节点、施工及注意事项等方面,解决以下问题:


1、玻璃隔断的类型及施工要点

2、悬挂隔断的两种处理方式及注意事项

3、绢布隔断的节点分析及施工注意事项


01.

玻璃隔断

教你如何利用隔断,打造出“琚宾之家”的通透室内空间

玻璃隔断玻璃隔断主要用于区隔两个空间——衣帽间、阳台、宴会厅等,主要分为活动玻璃隔断和非活动玻璃隔断。活动玻璃隔断又分为暗藏式隔断和非暗藏式隔断(移门效果)。


1、暗藏式玻璃隔断

如果暗藏的隔断可以向上反,也就是向上做凹槽下放一个飞边(图示效果),可以营造出垂下来的感觉。

教你如何利用隔断,打造出“琚宾之家”的通透室内空间

暗藏式玻璃隔断施工注意事项


图示节点因隔断距楼板距离远,所以适用两个方钢叠加起来(延伸作用)固定;若空间距离小可直接用膨胀螺栓将隔断固定于顶部楼板。

教你如何利用隔断,打造出“琚宾之家”的通透室内空间

△暗藏式隔断节点


1)选择滑轨的材质

滑轨多为合金质地,也有一部分滑轨由铜制成。合金质地的滑轨又分为普通型和加厚型,这是根据所适用的门窗的质地而定的。如果门窗的体积较小,重量又较轻,就可以选用较小巧一些的轨道,如果门或窗的重量较沉,就要选择加厚型轨道,确保安全耐用;


2)两扇门的宽度根据具体施工确定尺寸;做两扇门时宽度可定位1.5m,保证美观性

3)在安装的过程中将两边的门缝调整对齐,不然会让整个吊轨推拉门不协调。

4)施工时需要注意不能将吊轨露出,轨道与顶面不平整的问题。


2、非暗藏式玻璃隔断

教你如何利用隔断,打造出“琚宾之家”的通透室内空间

△非暗藏式隔断节点


主要是装饰作用,增加空间的趣味性,多用于门厅、会议室、茶室等,在施工过程中要注意边框和顶面收边的问题,一般用收口条进行收边。


3、非活动玻璃隔断

教你如何利用隔断,打造出“琚宾之家”的通透室内空间

非活动玻璃隔断多用于装饰,增加空间的趣味性,比如门厅、会议室、茶室等。

非暗藏式玻璃隔断施工主要事项

教你如何利用隔断,打造出“琚宾之家”的通透室内空间

△地面节点图


1、非暗藏式玻璃隔断玻璃自重过大时,玻璃需用专用吊件固定,固定玻璃时注意受力,不能夹爆玻璃。

2、根据实际情况焊烧吊玻璃钢架,用吊筋配合相关配件,吊住玻璃,注意需加胶垫,需计算荷教后确定方案。

教你如何利用隔断,打造出“琚宾之家”的通透室内空间

△顶面节点图


3、依次封平石膏板,与玻璃交接处对玻璃进行软处理;石膏板与玻璃的收口一般使用L型不锈钢槽进行收口。

4、边框与收边的问题:使用金属板或者胶收口。

教你如何利用隔断,打造出“琚宾之家”的通透室内空间

△有吊顶玻璃隔断节点

教你如何利用隔断,打造出“琚宾之家”的通透室内空间

△无吊顶玻璃隔断节点


02.

悬挂隔断

教你如何利用隔断,打造出“琚宾之家”的通透室内空间

1、悬挂隔断适用空间

悬挂隔断多用在功能性的空间:客厅,书房等,增加空间的趣味,电视背景墙偏多。


2、悬挂隔断施工注意事项

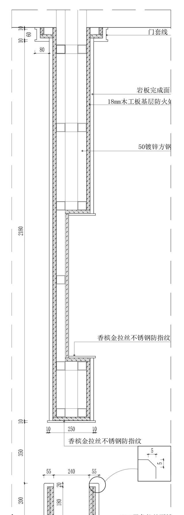
教你如何利用隔断,打造出“琚宾之家”的通透室内空间

△电视墙横向剖面图


1)方钢的大小问题:图示中考虑完成面厚度,故顶部选用50mm*50mm方钢,若宽度过大需要75mm*75mm方钢,具体根据项目来定。

2)背面完成面:背面及整体需用石材贴面,注意各部位的倒角问题。

教你如何利用隔断,打造出“琚宾之家”的通透室内空间

△电视墙竖向剖面图


3)收口的问题:主要是顶部收口,用门套线压住石材的设计手法,可营造垂下来的感觉。

03.

绢布隔断

教你如何利用隔断,打造出“琚宾之家”的通透室内空间

1、绢布隔断的作用


绢布隔断多用于装饰、足浴、屏风等。案例中的设计风格虽然是新中式,但给人感觉是轻盈的。主要是使用绢布隔断所营造出的轻薄、灵动。

教你如何利用隔断,打造出“琚宾之家”的通透室内空间

2、绢布隔断施工注意事项

教你如何利用隔断,打造出“琚宾之家”的通透室内空间

△绢布隔断节点图


1、U型不锈钢的表面需要做镀钛工艺、防锈处理和防指纹工艺;

2、安装正面沙布之前,在沙布的四周用5厘板开成3公分的条,用万能胶与沙布粘接防止直接固定不牢靠;

3、在U型槽内放入直径3公分的不锈钢钢管(此管为了固定与反光作用),然后在用同样的反法安装沙布,安装时要耐心细心,这是个细致活儿。


本节内容将了玻璃隔断、悬挂隔断和绢布隔断,主要讲到:

1、暗藏式活动玻璃隔断选择滑轨是根据隔断的重量来,需要注意门宽、门对齐、滑轨与顶面平面的问题;非暗藏要注意滑轨选择以及收口收边等的问题;


2、非活动暗藏式要注意相关配件,根据要求来施工,石膏板与玻璃交接要做软处理;非暗藏式玻璃隔断还要区别有吊顶和无吊顶区别做法(吊钩拉长固定),以及收口收边的问题;


3、悬挂隔断要考虑方钢的大小(根据设计要求来);背面完成面及收口的问题;


4、绢布隔断要考虑U型不锈钢的防锈、防指纹及纱布的处理;5厘板要做3公分条与纱布连接;放入不锈钢管主要是固定和反光作用。

免责声明

1、凡本网注明"来源:石材宝或福建石业或scbstone.com" 的所有作品,版权均属于本网站,未经本网授权,任何单位及个人不得转载、摘编或以其它方式使用上述作品。已经本网授权使用作品的,应在授权范围内使用,并注明"来源:scbstone.com。
2、本文章内容(含图片或视频及音频)由网络、报刊、新闻等整理而成,文章所述观点并不代表本平台立场,并不代表赞同其观点和对其真实性负责,转载是为了更好的传播行业资讯,不涉及盈利问题,版权或图片归原作者所有,本平台为非盈利平台,如有涉及侵权之嫌,请及时联系我们。