• 石库
  • 企业
  • 市场
  • 物流
  • 供求
  • 特价
  • 百科
直达
识图
正在上传图片,请稍后...
全国统一服务热线400-8855-126
石库
直达
识图
正在上传图片,请稍后...
400-8855-126
首页石材新闻石材装饰130平欧式,有生活气息的家
新闻类别
MORE+相关推荐
MORE+企业推荐

130平欧式,有生活气息的家

石材装饰 | 2019-11-23 16:16:31 | 来源:网络 | 浏览:766

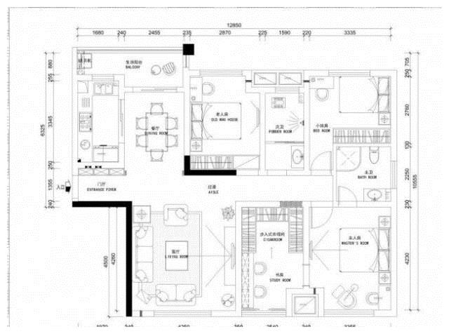
130平欧式,有生活气息的家

▲设计后的平面布置图

130平欧式,有生活气息的家

▲门厅空间地面仿古砖菱形拼花。右手半截墙格子瓷砖,上方照片墙装饰。右手镶嵌鞋柜

130平欧式,有生活气息的家

▲门厅进来右手客厅区域,沙发背景局部石膏板造型,局部碎花壁纸装饰《局部壁纸,就可以让家里出彩7.21》

130平欧式,有生活气息的家

▲电视墙局部石膏板勾勒造型,镂空碎花壁纸铺贴,壁灯装饰

130平欧式,有生活气息的家

▲门厅进来左手餐厅空间,左边厨房通透玻璃,墙面局部瓷砖半截墙铺贴

130平欧式,有生活气息的家

▲餐厅看客厅空间,餐厅做了拱形哑口造型

130平欧式,有生活气息的家

▲进入卧室的过道空间,两边半截墙瓷砖装饰,背景挂画点缀

130平欧式,有生活气息的家

▲站过道看门厅以及客厅空间

130平欧式,有生活气息的家

▲主卧空间墙面变色处理,能看到主卫空间

130平欧式,有生活气息的家

▲主卧背景简单线条勾勒,局部壁纸装饰,壁灯点缀《装修中简单线条就可以,省钱还高档》

130平欧式,有生活气息的家

▲主卧角落的欧式梳妆台配置

130平欧式,有生活气息的家

▲主卧床对面简单挂电视,旁边是进入书房空间

130平欧式,有生活气息的家

▲主卧里头的衣帽间兼书房设置《书房+衣帽间,一间两用10.20》

130平欧式,有生活气息的家

▲衣帽间的衣柜设置

130平欧式,有生活气息的家

▲进入次卧儿童房空间

130平欧式,有生活气息的家

▲儿童房粉色设置

130平欧式,有生活气息的家

▲侧墙白色推拉门衣柜

130平欧式,有生活气息的家

▲老人房的通顶衣柜《卧室衣柜,门上头要不要做吊柜?11.26》

130平欧式,有生活气息的家

▲老人房的另一个方向

130平欧式,有生活气息的家

▲主卫空间仿石材瓷砖,马桶做了局部背景处理,角落淋浴房设置

免责声明

1、凡本网注明"来源:石材宝或福建石业或scbstone.com" 的所有作品,版权均属于本网站,未经本网授权,任何单位及个人不得转载、摘编或以其它方式使用上述作品。已经本网授权使用作品的,应在授权范围内使用,并注明"来源:scbstone.com。
2、本文章内容(含图片或视频及音频)由网络、报刊、新闻等整理而成,文章所述观点并不代表本平台立场,并不代表赞同其观点和对其真实性负责,转载是为了更好的传播行业资讯,不涉及盈利问题,版权或图片归原作者所有,本平台为非盈利平台,如有涉及侵权之嫌,请及时联系我们。